Dodaj produkty podając kody
Dodaj plik CSV
Wpisz kody produktów, które chcesz zbiorczo dodać do koszyka (po przecinku, ze spacją lub od nowej linijki).
Powtórzenie wielokrotnie kodu, doda ten towar tyle razy ile razy występuje.
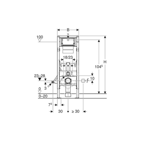
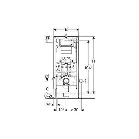
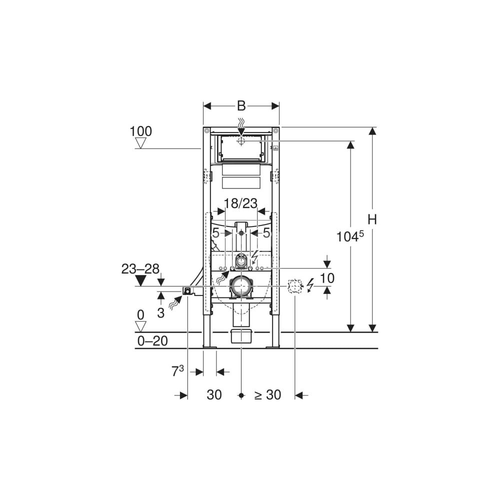
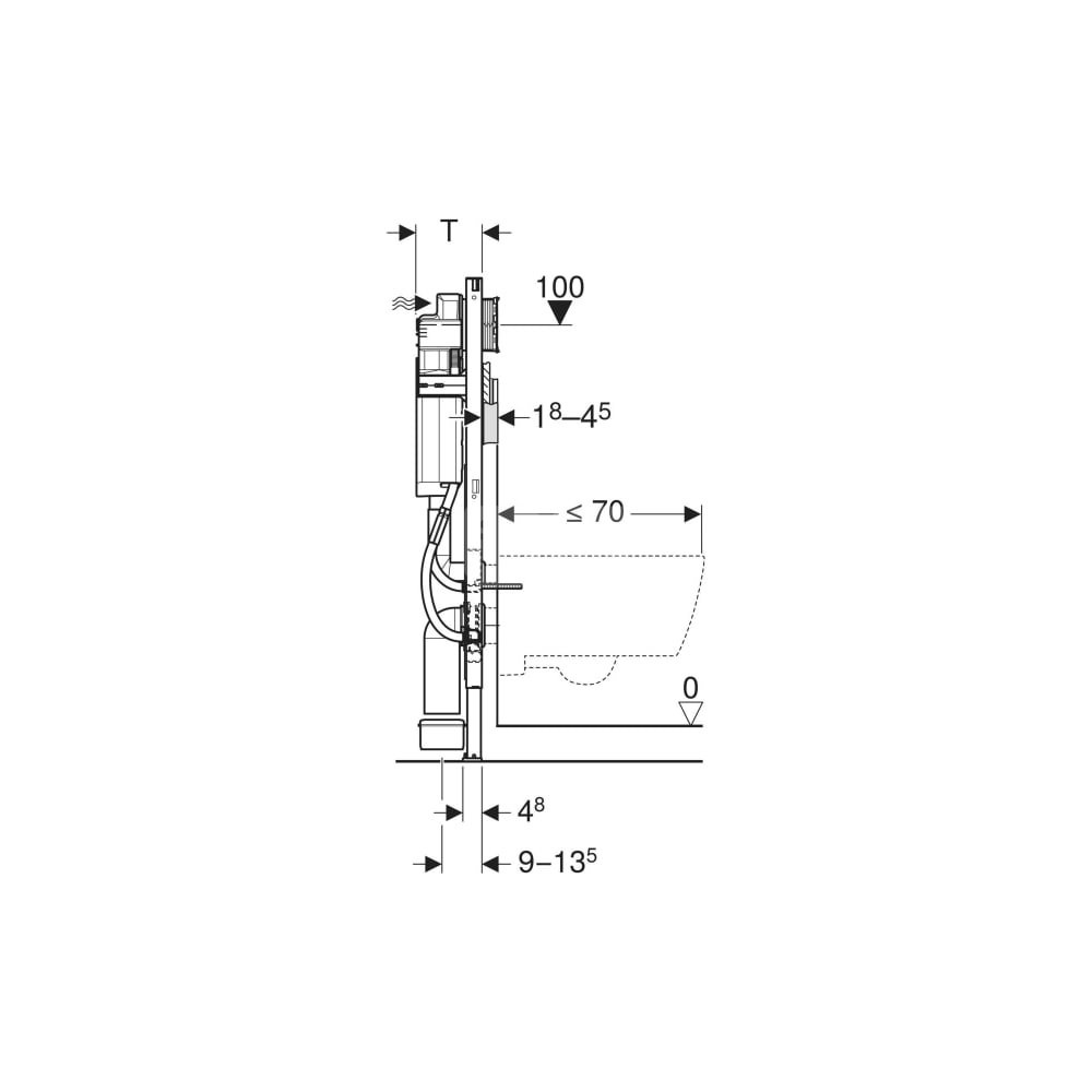
Akcesoria montażowe do elementu montażowego Geberit Duofix do wiszących misek WC, ze spłuczką podtynkową Sigma 12 cm
Przedstawione na niniejszej stronie internetowej informacje nie stanowią oferty handlowej w rozumieniu art.66 par.1 Kodeksu Cywilnego.
Marka
Symbol
19241.869.00.1
Rodzaj towaru
Akcesoria do podtynkowych systemów instalacyjnych
EAN
4025416747079
Kod producenta
241.869.00.1
Strona www producenta
www.geberit.pl
Zapytaj o produkt
Napisz swoją opinię
































