Dodaj produkty podając kody
Dodaj plik CSV
Wpisz kody produktów, które chcesz zbiorczo dodać do koszyka (po przecinku, ze spacją lub od nowej linijki).
Powtórzenie wielokrotnie kodu, doda ten towar tyle razy ile razy występuje.
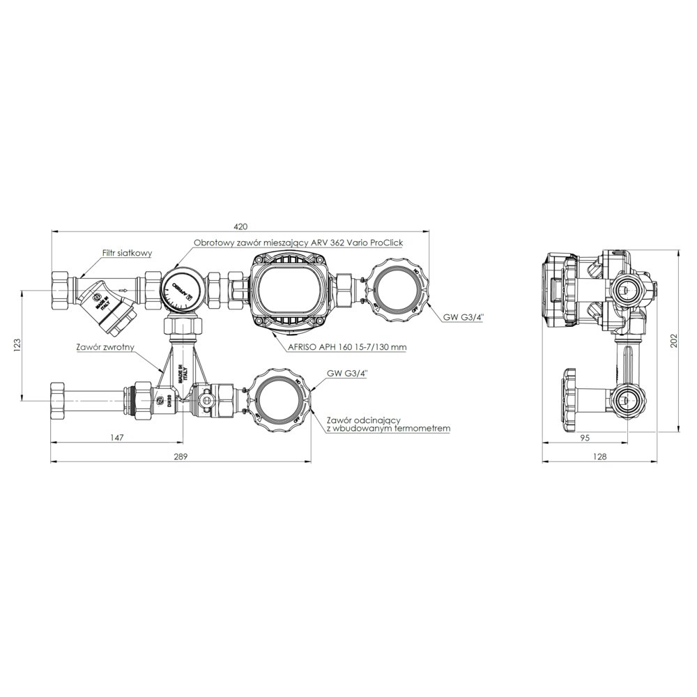
Grupa pompowa AFRISO BPS 996 AP nakrętka x GW 1'' x 3/4'', z zaworem mieszającym, z pompą obiegową AFRISO APH 160 15-7/130 mm
Przedstawione na niniejszej stronie internetowej informacje nie stanowią oferty handlowej w rozumieniu art.66 par.1 Kodeksu Cywilnego.
Obrotowy zawór mieszający ARV 362 Vario ProClick z możliwością ustawienia współczynnika Kvs w zakresie 3,5 ÷ 9 m³/h.
Filtr siatkowy chroni pompę oraz zawór mieszający przed zanieczyszczeniami.
Zawory odcinające ze zintegrowanymi termometrami do kontroli temperatury medium na każdym przyłączu.
Zawór zwrotny wbudowany w trójniku na przyłączu powrotnym.
Tuleje do montażu czujników temperatury na każdym przyłączu.
Możliwość montażu ze źródłem ciepła po prawej i lewej stronie.
Montując regulator ACT 443 ProClick lub ARC 345 ProClick na zaworze mieszającym możliwa jest automatyczna nastawa temperatury zasilania instalacji stałotmperaturowo lub pogodowo i sterowanie pompą obiegową.
Zastosowanie
Stosowana w instalacjach grzewczych i chłodzących.Montowana na rozdzielaczu ze sprzęgłem hydraulicznym BLH 890 lub między źródłem ciepła/chłodu a odbiornikiem.
Przygotowuje medium o odpowiedniej temperaturze i tłoczy je na instalację.
Zastosowanie
Stosowana w instalacjach grzewczych i chłodzących.Montowana na rozdzielaczu ze sprzęgłem hydraulicznym BLH 890 lub między źródłem ciepła/chłodu a odbiornikiem.
Przygotowuje medium o odpowiedniej temperaturze i tłoczy je na instalację.
Marka
Symbol
809099620
Rodzaj towaru
Pompy i grupy pompowe do c.o. i c.w.u.
EAN
5902510010355
Kod producenta
9099620
Wbudowana pompa obiegowa
1
Rodzaj przyłącza głównego
Nakrętka
Średnica nominalna po stronie pierwotnej
1''
Przyłącze obwodu wtórnego
Gwint wewnętrzny
Średnica nominalna po stronie wtórnej
3/4''
Rozmiar przyłącza pompy
3/4 ''
Z zaworem mieszającym
1
Nazwa/Model pompy
AFRISO APH 160 15-7/130 mm
Długość towaru w centymetrachWięcej
Długość towaru w centymetrach
48.5
Wysokość towaru w centymetrachWięcej
Wysokość towaru w centymetrach
13.5
Szerokość towaru w centymetrachWięcej
Szerokość towaru w centymetrach
26.5
Strona www producenta
www.afriso.pl
Zapytaj o produkt
Napisz swoją opinię





















