Dodaj produkty podając kody
Wpust KESSEL Ecoguss z 1 przyłączem DN 50, odpływ pionowy (zdejmowany), kratka 138x138mm stal nierdzewna
Przedstawione na niniejszej stronie internetowej informacje nie stanowią oferty handlowej w rozumieniu art.66 par.1 Kodeksu Cywilnego.
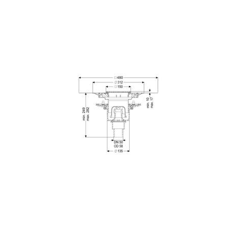
KESSEL Wpust obiek. Ecoguss doc.koł.usz., wielkość nominalna (DN) 50, dł. pokrywy 138 mm, króciec pionowy, syfonem w zestawie, odwodnienie przez odpływ punktowy, maks. wys. posadzki 17 mm, typ pokrywy Kratka szczelinowa, regulowany w trzech wymiarach
- Naukowo potwierdzona izolacja akustyczna
- Najwyższe standardy ochrony przeciwpożarowej
Wpust obiek. Ecoguss doc.koł.usz. DN 50, pion.I Variofix, Kratka szczelin.
Wpust obiektowy Ecoguss służy do odwodnienia punktowego i jest wyposażony w dociskowy kołnierz uszczelniający, wyjmowany syfon, uszczelkę wargową i pokrywę ochronną na czas fazy budowlanej. Nadający się do recyklingu materiał kompozytowy Ecoguss spełnia najwyższe wymagania w zakresie izolacji akustycznej, jest odporny na agresywne media i temperaturę oraz ma trwale niekorodującą powierzchnię. Można go krótkotrwale obrabiać otwartym ogniem od 100 do 400 stopni Celsjusza. Dociskowy kołnierz uszczelniający z bolcami i śrubami ze stali nierdzewnej służy do dociskania lub zgrzewania taśm bitumicznych i polimerowo-bitumicznych oraz taśm uszczelniających z tworzywa sztucznego i elastomerów. Do uszczelnień wodoszczelnych mogą być stosowane tylko sprawdzone przez producenta membrany hydroizolacyjne. Króciec odpływowy jest przystosowany do podłączenia do rur SML. Wyrównanie potencjałów nie jest konieczne.
Wersja
- System: 125
- Uszczelnienie na nasadzie: załączona mata uszczelniająca do przyklejenia (zmu) wg DIN 18534
- Uszczelnienie na korpusie: Dociskowy kołnierz uszczelniający (odpowiedni do tworzenia uszczelnień wodoszczelnych)
- Wys. zamknięcia wodnego: 50 mm
Cechy ogólne
- Norma: EN 1253-1
- Wielkość nominalna (DN): 50
- Średnica zewnętrzna (DA): 58 mm
- Aprobata: Z-19.53-2414,Z-19.17-1719
Wymiary
- Ciężar netto: 4,26 kg
- Ciężar brutto: 5,25 kg
- Średnica: 273 mm
- Rodzaj regulacji wysokości: Nasada teleskopowa
- Długość: 273 mm
- Szerokość: 273 mm
- Wymiar opakowania: dł.: 588 mm
- Wymiar opakowania: szer.: 388 mm
- Wymiar opakowania: wys.: 400 mm
Zbiornik/korpus
- Liczba odpływów: 1
- Materiał korpusu wpustu: Ecoguss
- Wariant króćca: pionowy
Cechy pokrywy
- Typ pokrywy: Kratka szczelinowa
- Materiał pokrywy: Stal nierdzewna 14301
- Kolor pokrywy: srebrny
- Pokrywy, Szerokość: 138 mm
- Pokrywy, Długość: 138 mm
- Min. wysokość powłoki: 10 mm
- Powierzchnia: Stal nierdzewna powierzchnia polerowana
- Materiał ramy: Stal nierdzewna 14301
- Blokada: przykręcony
- Klasa obciążenia: K 3 (EN 1253-1)
- Szerokość ramy: 150 mm
- Długość ramy: 150 mm
- Maks. grubość podłogi: 17 mm
- Nasada: regulowany w trzech wymiarach
- Kształt nasady: Kwadratowa
- Materiał nasady: ABS
- Syfon: w zestawie











