Dodaj produkty podając kody
Przedstawione na niniejszej stronie internetowej informacje nie stanowią oferty handlowej w rozumieniu art.66 par.1 Kodeksu Cywilnego.
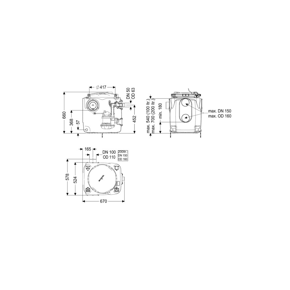
KESSEL Przepompownia Aqualift S 100 Tronic, ścieków Ścieki bez fekaliów, Wtyczka kodowana, sterowanie pompą przez sterownik, sterownik Comfort, z pompą zatapialną GTF 1250, typ pracy S1
- Łatwa konserwacja bez użycia narzędzi
- Zbiornik urządzenia z PE, odporny na agresywne ścieki
- Z zaworem zwrotnym przewodu tłocznego
Przepompownia Aqualift S 100 Tronic, GTF1250, zabudowa wolnostojąca
Gotowa do przyłączenia przepompownia do ścieków bez fekaliów jest wyposażony w jedną lub dwie pompy zatapialną oraz zawór zwrotny. Zbiornik wykonany z trwałego tworzywa sztucznego (PE) posiada otwartą komorę pompy. Zamknięcia jednoręczne umożliwiają łatwe wyjęcie zintegrowanych komponentów.
Wersja
- Typ urządzenia: Pojedyncza jednostka
- Sterowanie pompą: sterownik
- Zawór zwrotny: zintegrowany
Cechy ogólne
- Kolor: czarny
- Norma: EN 12050-2
- Typ ścieków: Ścieki bez fekaliów
- Sposób zabudowy: ustawienie swobodne
- Stan w momencie dostawy: wstępnie zmontowany do montażu końcowego w miejscu instalacji (pompy i czujniki do zamontowania w miejscu instalacji, urządzenie sterownicze do podłączenia)
- Typ urządzenia: Tronic
Wymiary
- Ciężar netto: 34,05 kg
- Ciężar brutto: 34,05 kg
- Długość: 670 mm
- Szerokość: 530 mm
- Wysokość: 650 mm
- Wymiar opakowania: dł.: 700 mm
- Wymiar opakowania: szer.: 800 mm
- Wymiar opakowania: wys.: 779 mm
Zbiornik/korpus
- Przewód tłoczny (DN): 50
- Przewód tłoczny (DA): 63 mm
- Wielkość nominalna dopływu (DN): 100 mm
- Pojemność użytkowa: 50 l
- Pojemność zbiornika: 120 l
Cechy pokrywy
- Typ pokrywy: pokrywa
- Materiał pokrywy: Tworzywo sztuczne
- Kolor pokrywy: fioletowy
- Blokada: Zamknięcie szybkomocujące
- Szczelność: odporny na przenikanie zapachów
Przenośnik
- Pompa: GTF 1250
- Liczba pomp: 1
- Ciężar, pompa: 10 kg
- Typ przyłącza: Wtyczka kodowana
- Prąd znamionowy: 5,4 A
- Długość przewodu sieciowego pompy: 5 m
- Klasa ochrony: I
- Klasa izolacji: F
- Stopień ochrony pompy: IP 68 (3 m)
- Nadzór temperatury: zintegrowany
- Maks. temperatura tłoczonego medium (przy pracy stałej): 40 °C
- Maks. wydajność tłoczenia: 20 m³/h
- Maks. wys. podnoszenia: 11 m
- Prędkość obrotowa: 2700 U/min
- Pobór mocy P1: 1,3 kW
- Pobór mocy P2: 0,8 kW
- Tryb roboczy: S1
- Wymagane zabezpieczenie (zabezpieczenie linii): C 16 A
- Typ przewodu przyłączeniowego pompy: H07RN-F 3G 1,5 mm²
- Typ wirnika: Wolny przelot
- Wolny przelot: 10 mm
Sterowanie
- Sterownik: Comfort
- Funkcja sterownik: Z komunikatem alarmowym
- Włącznik ochrony silnika: tak
- Instrument do rozpoznania poziomu: Rura zanurzeniowa
- Typ pomiaru poziomu: pneumatyczny
- Stopień ochrony sterowniku: IP 54
- Częstotliwość sieciowa: 50 Hz
- Napięcie robocze: 230 V
- Typ przyłącza: Wtyczka kodowana
- Długość przewodu sieciowego sterownik: 1,4 m
- Kontakt bezpotencjałowy: opcjonalny
- Złącze GSM: tak
- Złącze USB: tak
- Funkcja dziennika zdarzeń: tak
- Wyświetlacz wielowierszowy: tak
- Podtrzymywanie bateryjne: tak
- System samodiagnozy (SDS): tak
- Wariant urządzenia ostrzegawczego: sygnał akustyczny i optyczny
- Prąd znamionowy: 5,4 A











