Urządzenie przeciwzalewowe klasy premium do ścieków zawierających fekalia i bez fekaliów jest wyposażone w pompę i system zamykania za pomocą silnika.
W normalnym stanie przekrój rury jest otwarty. W przypadku przepływu zwrotnego system zamykania za pomocą silnika zostaje automatycznie zamknięty. Odprowadzanie w trakcie fazy przepływu zwrotnego odbywa się przez pompę ze zintegrowanym mechanizmem rozdrabniającym.
Sterowanie następuje przy pomocy przyjaznego dla użytkownika urządzenia sterującego, które można opcjonalnie poprzez kontakt bezpotencjałowy włączyć w system zarządzania budynkiem lub które może poprzez złącze GSM generować komunikaty zbiorcze o alarmach i zakłóceniach.
Rodzaj ścieków: Ścieki zawierające fekalia
Sposób zabudowy: zabudowa w płycie podłogowej
Wykonanie:
Syfon: Multistop
Zamknięcie awaryjne: tak
Sterowanie pompą: Urządzenie sterownicze
Stan w momencie dostawy: wstępnie zmontowany do montażu końcowego w miejscu instalacji (pompy i czujniki do zamontowania w miejscu instalacji, urządzenie sterownicze do podłączenia)
Liczba klap zwrotnych z napędem silnikowym: 1
Cechy ogólne
Wielkość nominalna (DN): 200
Średnica zewnętrzna (DA): 200
Wskazówka dotycząca wielkości nominalnej: hydraulicznie odpowiada DN 150
Kolor: czarny
Aprobata: Z-53.2-388
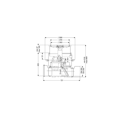
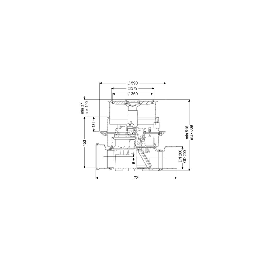
Wymiary
Długość: 720 mmSzerokość: 590 mm
Wybranie, długość: 750 mm
Wybranie, szerokość: 750 mm
Zbiornik:
Głębokość zabudowy: 486 - 640 mm
Odporność na wodę gruntową od dolnej krawędzi dna: 3000 mm
Zbiornik / korpus podstawowy:
Wariant króćca: Z króćcem bosym i kielichem
Możliwość regulacji wysokości: Nasada teleskopowa
Cechy pokrywy
Rodzaj pokrywy: Pokrywa do wklejenia płytek
Materiał pokrywy: Tworzywo sztuczne
Funkcja wpustu: tak
maks. grubość podłogi : 16 mm
Klasa obciążenia: K 3 (EN 1253-1)
Długość: 366 mm
Szerokość: 366 mm
Blokada: Lock & Lift
Przenośnik:
Pompa: SPZ 1000
Liczba pomp: 1
maks. wydajność tłoczenia: 11,5 m3/h
maks. wysokość podnoszenia: 10 m
Tryb roboczy: S3 - 50%
Pobór mocy P1: 1,2 kW
Pobór mocy P2: 0,69 kW
Prędkość obrotowa: 2 800 U/min
wymagane zabezpieczenie (zabezpieczenie linii): C 16 A
maks. temperatura tłoczonego medium (przy pracy stałej): 40 °C
Typ przyłącza: Wtyczka kodowana
Ciężar: 10 kg
Typ wirnika: Mechanizm rozdrabniający
Długość przewodu sieciowego pompy: 5 m
Prąd znamionowy: 5,2 A
Stopień ochrony pompy: IP 68 (3 m / 48 h)
Klasa ochrony: I
Typ przewodu przyłączeniowego pompy: H07RN-F 3G 1,0 mm2
Nadzór temperatury: zintegrowany
Współczynnik mocy Cos phi: 0,97
Klasa izolacji: F
Spadek: 9 mm
Typ silnika: KSM 140
Stopień ochrony silnika: IP 68 (3 m / 48 h)
Stopień ochrony sondy: IP 68 (3 m / 48 h)
Sterowanie
Urządzenie sterownicze: ComfortNapięcie robocze: 230 V
Częstotliwość znamionowa: 50 Hz
System samodiagnozy (SDS): tak
Podtrzymywanie bateryjne : tak
Wyświetlacz wielowierszowy: tak
Funkcja dziennika zdarzeń: tak
Złącze USB: tak
Złącze GSM: tak
Kontakt bezpotencjałowy: opcjonalny
Stopień ochrony urządzenia sterowniczego: IP 54
Długość przewodu sieciowego urządzenia sterującego: 1,4 m
Rodzaj pomiaru poziomu: optyczny
Instrument do rozpoznania poziomu: sonda optyczna
Czujnik alarmowy: Sonda optyczna











