Dodaj produkty podając kody
Dodaj plik CSV
Wpisz kody produktów, które chcesz zbiorczo dodać do koszyka (po przecinku, ze spacją lub od nowej linijki).
Powtórzenie wielokrotnie kodu, doda ten towar tyle razy ile razy występuje.
Pompa głębinowa 1-fazowa WILO Sub TWU 4-0214-C EM częstotliwość 50 Hz, moc 0.75 kW 5.9 A, prędkość obrotowa 2869 obr/min
Przedstawione na niniejszej stronie internetowej informacje nie stanowią oferty handlowej w rozumieniu art.66 par.1 Kodeksu Cywilnego.
Całkowicie zanurzona, wielostopniowa pompa głębinowa z promieniowymi lub półosiowymi wirnikami o budowie segmentowej do montażu pionowego lub poziomego, z wbudowanym zabezpieczeniem przed przepływem zwrotnym. Odporny na korozję silnik prądu zmiennego lub indukcyjny trójfazowy do rozruchu bezpośredniego, napełniony mieszaniną wody i glikolu. Hermetycznie zalany silnik z uzwojeniem emaliowanym, impregnowany żywicą, z łożyskami samosmarującymi. Chłodzenie silnika odbywa się poprzez przetłaczane medium. Dlatego podczas pracy urządzenie musi być zawsze zanurzone. Przy montażu poziomym konieczny jest płaszcz chłodzący.
Do tłoczenia wody ze studni głębinowych przy maksymalnej głębokości zanurzenia 200 m i maks. zawartości piasku 50 g/m³.
*Zakres dostawy:
*Hydraulika razem z silnikiem gotowe do instalacji
*Kabel zasilający z atestem do wody użytkowej
*Wersja na prąd zmienny ze skrzynką łączeniową z kondensatorem, termicznym zabezpieczeniem silnika oraz włącznikiem/wyłącznikiem.
*Instrukcja montażu i obsługi
Dane eksploatacyjne
*Wysokość podnoszenia maks.: 8,924051 m
Jednostka
*Wskaźnik minimalnej energochłonności (MEI): 0,7
*Przyłącze gwintowane po stronie tłocznej: Rp 1¼
*Maks. ciśnienie robocze: 40 bar
*Maks. zawartość piasku: 50
*Stopień ochrony silnika:
*Maks. głębokość zanurzenia: 200 m
*Min. temperatura przetłaczanej cieczy: 3 oC
*Maks. temperatura przetłaczanej cieczy: 30 oC
*Masa netto ok.: 12,2 kg
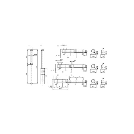
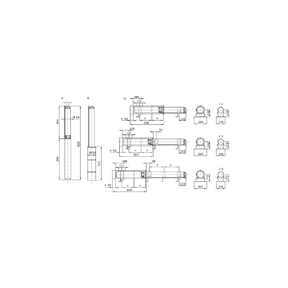
*Wymiary: 98 mm
Dane silnika
*Przyłącze sieciowe:
*Znamionowa moc silnika: 750
*Znamionowa prędkość obrotowa: 2869 Obroty / min
*Prąd znamionowy: 5,9 A
*Rodzaj załączania: Bezpośrednio (D)
*Maks. częstotliwość załączania: 20
*Średnica silnika: 98 mm
*Min. prędkość przepływu na silniku: 0,08 m/s
Przewód
*Długość kabla zasilającego: 1,75 m
*Przekrój przewodu: 4G1,5 mm²
Materiały
*Korpus pompy: Stal nierdzewna
*Materiał silnika: Stal nierdzewna
*Wał: Stal nierdzewna
*Wirnik:
Informacje na temat umiejscowienia zamówień
*Masa netto ok.: 12,2 kg
*Produkt:
*Nazwa produktu: Sub TWU4-0214-C (1~230 V, 50 Hz)
*Numer artykułu: 6046689
Marka
Symbol
816046689
Rodzaj towaru
Pompy do wody użytkowej
EAN
4044966490273
Kod producenta
6046689
Prąd znamionowy [A]
5.9
Moc oddawana silnika (P2) [kW]
0.75
Prędkość obrotowa [obr/min]
2869
Materiał wirnika
Polipropylen
Częstotliwość
50 Hz
Stopień ochrony (IP)
IP68
Klasa izolacji wg IEC
B
Podłączenie elektryczne
Przewód połączeniowy z wtyczką
Liczba faz
1
Zakres napięcia znamionowego [V]
230
Maks. ciśnienie robocze [bar]
10
Maksymalna liczba cykli pracy [c/h]
20
Średnica zewnętrzna przyłącza od strony wylotowej [mm]
32
Maks. wydajność (maks. przepływ) [m³/h]
2.55
Maks. wysokość podnoszenia [m]
91.99
Przepływ nominalny (BEP) [m³/h]
2.178
Wysokość podnoszenia przy przepływie nominalnym (BEP) [kPa]
643.91
Materiał korpusu pompy
Stal nierdzewna
Gatunek materiału korpusu pompy
Stal nierdzewna 304
Gatunek materiału wirnika
PVC-CPE
Przyłącze po stronie wylotowej
Gwint wewnętrzny gazowy stożkowy
Średnica nominalna przyłącza od strony wylotowej
1 1/4 cala
Klasa ciśnienia kołnierza przyłącza wylotowego
PN 10
Kształt końcówki
Inne
Głębokość zanurzenia [m]
200
Maks. zawartość piasku [g/m³]
50
Długość towaru w centymetrachWięcej
Długość towaru w centymetrach
20
Wysokość towaru w centymetrachWięcej
Wysokość towaru w centymetrach
20
Szerokość towaru w centymetrachWięcej
Szerokość towaru w centymetrach
115
Strona www producenta
www.wilo.pl
Zapytaj o produkt
Napisz swoją opinię
















