Dodaj produkty podając kody
Dodaj plik CSV
Wpisz kody produktów, które chcesz zbiorczo dodać do koszyka (po przecinku, ze spacją lub od nowej linijki).
Powtórzenie wielokrotnie kodu, doda ten towar tyle razy ile razy występuje.
Przedstawione na niniejszej stronie internetowej informacje nie stanowią oferty handlowej w rozumieniu art.66 par.1 Kodeksu Cywilnego.
Unikalne cechy produktu:
Charakterystyka:
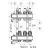
Rozdzielacze są elementem systemu centralnego ogrzewania, który rozprowadza (rozdziela) czynnik grzewczy na poszczególne odcinki instalacji grzewczej.
Znajdują zastosowanie w instalacjach grzejnikowych ogrzewania i chłodzenia płaszczyznowego oraz układach mieszanych.
Umożliwiają precyzyjną regulację instalacji i niezawodną pracę całego systemu ogrzewania.
Zalety rozdzielaczy:
- PrecMarkaSymbolK5RZP06SSeriaRodzaj towaruRozdzielaczeEAN5901095680113Kod producentaRZP06SDługość towaru w centymetrachWięcejDługość towaru w centymetrach46Wysokość towaru w centymetrachWięcejWysokość towaru w centymetrach14Szerokość towaru w centymetrachWięcejSzerokość towaru w centymetrach40.5Strona www producentawww.ferro.plZapytaj o produktNapisz swoją opinię














![Otulina K-FLEX ST IN CLAD BLACK - 32 × 133 - [2]](hpeciai/efc8bbf31ac68be284bfd4731dbe897d/pol_is_Otulina-K-FLEX-ST-IN-CLAD-BLACK-32-x-133-2-131896.jpg)
















