Dodaj produkty podając kody
Dodaj plik CSV
Wpisz kody produktów, które chcesz zbiorczo dodać do koszyka (po przecinku, ze spacją lub od nowej linijki).
Powtórzenie wielokrotnie kodu, doda ten towar tyle razy ile razy występuje.
Przedstawione na niniejszej stronie internetowej informacje nie stanowią oferty handlowej w rozumieniu art.66 par.1 Kodeksu Cywilnego.
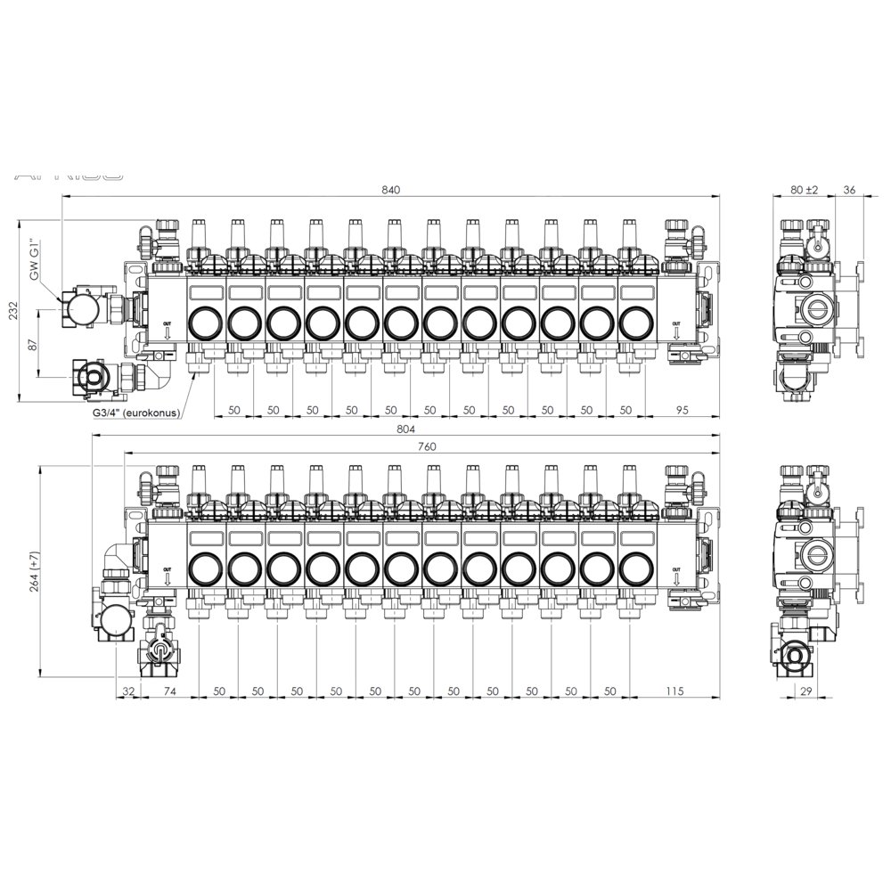
Specjalna konstrukcja, dzięki której połączono dwie strefy (zasilającej i powrotnej) w obrębie jednej belki powoduje znaczne zmniejszenie gabarytów rozdzielacza.
Strefa zasilająca wyposażona w rotametry z zakresem regulacji przepływu 0,75 ÷ 3,75 l/min.
Strefa powrotna wyposażona w nakrętki zaworów do ręcznego odcinania strumienia w danej pętli.
Strefa powrotna wyposażona w termometr bimetaliczny na każdej pętli.
Każda strefa posiada zawór do napełniania, opróżniania i płukania instalacji oraz osobny odpowietrznik ręczny.
Poliamidowe zawory odcinające ułatwiają pracę konserwacyjne oraz napełnianie oraz płukanie pętli. Zawór na zasilaniu posiada termometr.
Konstrukcja umożliwia zamianę przyłączy z lewej na prawą stronę oraz podłączenia instalacji zarówno z boku jak i od dołu.
Na zaworach odcinających na belce powrotnej można zamontować siłowniki termoelektryczne (np. TSA-01) i podłączyć je do systemu sterowania strefowego (np. CosiTherm), co pozwoli ustawić różne temperatury w każdej ze stref.
Zastosowanie
Stosowany w instalacjach płaszczyznowych grzewczych lub chłodzących.Montowany w szafce umieszczonej w ścianie / na ścianie budynku lub pod stropem w instalacjach sufitowych.
Rozprowadza ciepło / chłód ze źródła na poszczególne pętle instalacji płaszczyznowej.
Reguluje strumień medium w każdej z pętli.
Mierzy temperaturę na powrocie z każdej pętli.
Zastosowanie
Stosowany w instalacjach płaszczyznowych grzewczych lub chłodzących.Montowany w szafce umieszczonej w ścianie / na ścianie budynku lub pod stropem w instalacjach sufitowych.
Rozprowadza ciepło / chłód ze źródła na poszczególne pętle instalacji płaszczyznowej.
Reguluje strumień medium w każdej z pętli.
Mierzy temperaturę na powrocie z każdej pętli.
Marka
Symbol
8081492
Rodzaj towaru
Rozdzielacze
EAN
4049827225537
Kod producenta
81492
Długość towaru w centymetrachWięcej
Długość towaru w centymetrach
84
Wysokość towaru w centymetrachWięcej
Wysokość towaru w centymetrach
9.2
Szerokość towaru w centymetrachWięcej
Szerokość towaru w centymetrach
22.5
Strona www producenta
www.afriso.pl
Zapytaj o produkt
Napisz swoją opinię



































