Dodaj produkty podając kody
Dodaj plik CSV
Wpisz kody produktów, które chcesz zbiorczo dodać do koszyka (po przecinku, ze spacją lub od nowej linijki).
Powtórzenie wielokrotnie kodu, doda ten towar tyle razy ile razy występuje.
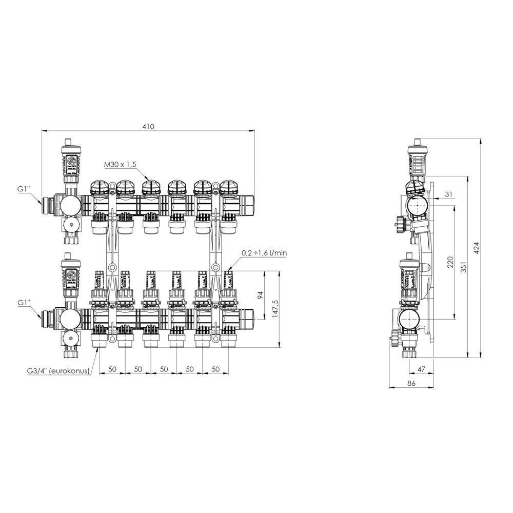
Rozdzielacz do ogrzewania podłogowego AFRISO ProCalida EF1 6-obieg. poliamid GZ 1'' x euroconus 3/4''
Przedstawione na niniejszej stronie internetowej informacje nie stanowią oferty handlowej w rozumieniu art.66 par.1 Kodeksu Cywilnego.
Belki fabrycznie zamontowane na wieszakach.
Belka zasilająca wyposażona w rotametry z zakresem regulacji przepływu 0,2 ÷ 1,6 l/min.
Belka powrotna wyposażona w nakrętki zaworów do ręcznego odcinania strumienia w danej pętli.
Belki wyposażone w zawory do napełniania, opróżniania i płukania instalacji.
Termometry na każdej belce umożliwiają kontrolę temperatury na zasilaniu i powrocie.
Odpowietrznik ręczny na każdej belce umożliwia odpowietrzenie instalacji. Odpowietrzniki ręczne można zastąpić poliamidowymi odpowietrznikami automatycznymi, które wchodzą w skład elementów dostawy.
Na zaworach odcinających na belce powrotnej można zamontować siłowniki termoelektryczne (np. TSA-01) i podłączyć je do systemu sterowania strefowego (np. FloorControl, CosiTherm), co pozwoli ustawić różne temperatury w każdej ze stref.
Zastosowanie
Stosowany w instalacjach płaszczyznowych grzewczych lub chłodzących.Montowany w szafce umieszczonej w ścianie/na ścianie budynku lub pod stropem w instalacjach sufitowych.
Rozprowadza ciepło/chłód ze źródła na poszczególne pętle instalacji płaszczyznowej.
Reguluje strumień medium w każdej z pętli.
Zastosowanie
Stosowany w instalacjach płaszczyznowych grzewczych lub chłodzących.Montowany w szafce umieszczonej w ścianie/na ścianie budynku lub pod stropem w instalacjach sufitowych.
Rozprowadza ciepło/chłód ze źródła na poszczególne pętle instalacji płaszczyznowej.
Reguluje strumień medium w każdej z pętli.
Marka
Symbol
8081366
Rodzaj towaru
Rozdzielacze
EAN
5902510011499
Kod producenta
81366
Liczba obiegów ogrzewania podłogowego
6
Materiał
Poliamid
Rodzaj przyłącza źródła ciepła
Gwint zewnętrzny
Rozmiar przyłącza źródła ciepła
1''
Rodzaj przyłącza obiegu
Euroconus
Rozmiar przyłącza obiegu
3/4''
Długość towaru w centymetrachWięcej
Długość towaru w centymetrach
49
Wysokość towaru w centymetrachWięcej
Wysokość towaru w centymetrach
9
Szerokość towaru w centymetrachWięcej
Szerokość towaru w centymetrach
37.5
Strona www producenta
www.afriso.pl
Zapytaj o produkt
Napisz swoją opinię



















