Dodaj produkty podając kody
Przedstawione na niniejszej stronie internetowej informacje nie stanowią oferty handlowej w rozumieniu art.66 par.1 Kodeksu Cywilnego.
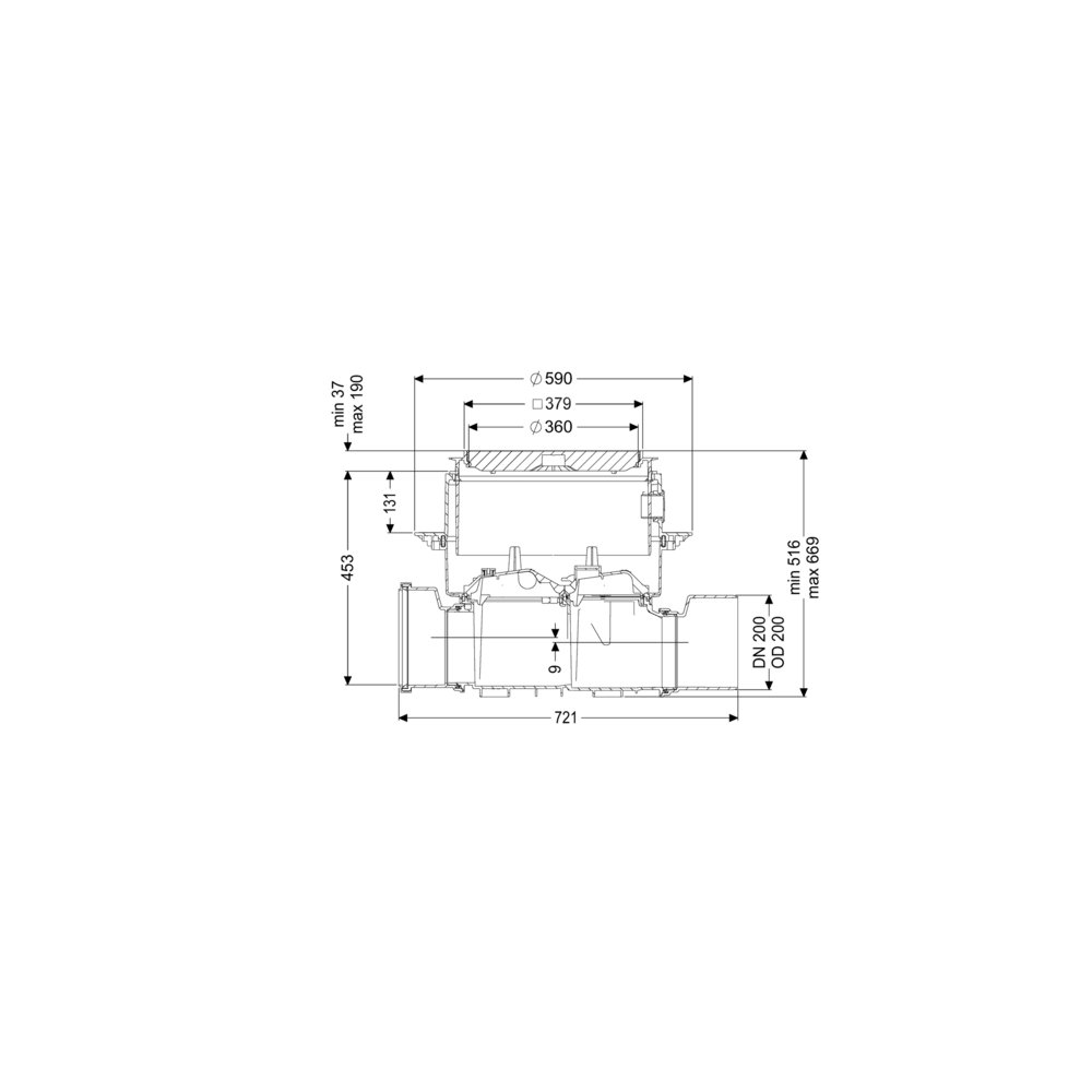
KESSEL Czyszczak Controlfix, wielkość nominalna (DN) 200, czarny, ścieków Ścieki zawierające fekalia i bez fekaliów, zamknięcie Lock & Lift, zabudowa w płycie podłogowej, typ pokrywy pokrywa
- Łatwe przezbrojenie na Staufix SWA
- Szybka i łatwa konserwacja bez użycia narzędzi
- Szybki dostęp bez użycia narzędzi w celu wyczyszczenia
Czyszczak Controlfix DN 200, Płyta podłogowa, czarny
Czyszczak klasy premium do ścieków zawierających fekalia i bez fekaliów umożliwia wygodny dostęp do przewodów kanalizacyjnych w celu przeprowadzenia przeglądu lub konserwacji. Modułowy system elementów łączonych KESSEL pozwala na bezproblemowe przezbrojenie istniejących urządzeń na zawór przeciwzalewowy klasy premium Staufix SWA, Staufix FKA lub zawór przeciwzalewowy z pompą Pumpfix F.
Cechy ogólne
- Kolor: czarny
- Wielkość nominalna (DN): 200
- Średnica zewnętrzna (DA): 200 mm
- Wskazówka dotycząca wielkości nominalnej: hydraulicznie odpowiada DN 150
- Typ ścieków: Ścieki zawierające fekalia i bez fekaliów
- Sposób zabudowy: zabudowa w płycie podłogowej
- Stan w momencie dostawy: gotowy do instalacji (części łączące do podłączenia w miejscu instalacji)
Wymiary
- Ciężar netto: 14 kg
- Ciężar brutto: 19,5 kg
- Odporność na wodę gruntową od dolnej krawędzi dna: 3000 mm
- Wybranie, Szerokość: 750 mm
- Wybranie, długość: 750 mm
- Spadek: 9 mm
- Głębokość zabudowy: 516 - 669 mm
- Rodzaj regulacji wysokości: Nasada teleskopowa
- Długość: 486 mm
- Szerokość: 590 mm
- Wymiar opakowania: dł.: 720,5 mm
- Wymiar opakowania: szer.: 590 mm
- Wymiar opakowania: wys.: 348 mm
Zbiornik/korpus
- Wariant króćca: Z króćcem bosym i kielichem
Cechy pokrywy
- Typ pokrywy: pokrywa
- Materiał pokrywy: Tworzywo sztuczne
- Kolor pokrywy: czarny
- Pokrywy, Szerokość: 366 mm
- Pokrywy, Długość: 366 mm
- Blokada: Lock & Lift
- Klasa obciążenia: L 15 (EN 1253-1)
- Szczelność: wodoszczelny











